Mặt bằng Park 3 Vinhomes Central Park (Tân Cảng) thiết kế giúp tòa căn hộ có tầm nhìn toàn cảnh và hút mắt nhất toàn dự án. Tòa căn hộ Park 3 được xem là tòa đẹp nhất tại Vinhomes Tân Cảng.
Thông tin căn hộ Park 3 – mặt bằng tổng thể tòa P3
Thừa hưởng thiết kế thông minh và tối ưu góc nhìn của khu Park giúp hầu hết các căn hộ tại P3 đều có view nhìn về công viên Central Park và sông Sài Gòn.
Vị trí và Hướng Block căn hộ tại tòa P3
Block mặt bằng căn hộ tại đây thuộc khuôn viên Phân khu The Park của Vinhomes Central Park có các view hướng như sau:
- Hướng Tây Bắc: view hướng về nội khu và tòa Park; hướng quận Bình Thạnh
- Hướng Tây Nam: view hướng về hồ bơi và Park 2, khu Central; hướng về quận 1 và đường Nguyễn Hữu Cảnh
- Hướng Đông Bắc: view hướng công viên Central Park và Park 4; hướng về sông Sài Gòn và Thủ Đức
- Hướng Đông Nam: view nhìn trực diện công viên Central Park và sông Sài Gòn; hướng về Tp. Thủ Đức
Năm khởi công: 2015
Năm hoàn thành: 2017
Chi tiết bàn giao mặt bằng Park 3 Vinhomes Central Park (Tân Cảng)
- Số tầng: 43 tầng – Hầm: 3 hầm, thông hầm với toàn bộ các tòa trong khu Park
- 12 căn hộ trên một sàn – 8 thang máy và 3 thang bộ phục vụ cho cư dân
- Shophouse, căn duplex thương mại: 7 shophouse 2 mặt tòa nhà
- Thừa hưởng không gian mát mẻ của khuôn viên khu Park giống như cái tên của chính nó The Park = Công viên.
Tiện ích tại Park 3 Vinhomes Central Park
- Hồ bơi tràn bờ phục vụ cư dân (hệ thống hồ bơi trải dài nội khu khu Park)
- Chỉ 1 phút đi từ sảnh ra công viên Central Park
- Khu vui chơi vận động ngoài trời cho trẻ nằm trong khuôn viên ốc đảo thiên đường The Park
- Shophouse nhà hàng, spa, dịch vị 5 sao
- View trực diện công viên, view triệu đô nhất tại Vinhomes
- Là một trong 5 tòa khu Park có thiết kế mặt bằng tối ưu view nhìn về hướng công viên và sông Sài Gòn.
Thông tin Layout P3-01
- 3PN, 2WC, 1 ban công
- Diện tích tim tường: 118,1 m2
- Diện tích thông thuỷ: 110,9 m2
- Hướng cửa: Bắc
- Hướng ban công: Nam
- View: Sông, công viên
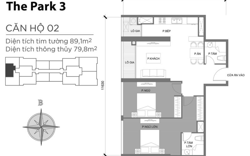
Thông tin Layout P3-02
- 2PN, 2WC, 1 ban công
- Diện tích tim tường: 89,1 m2
- Diện tích thông thuỷ: 79,8 m2
- Hướng cửa: Đông
- Hướng ban công: Tây
- View: Nội khu
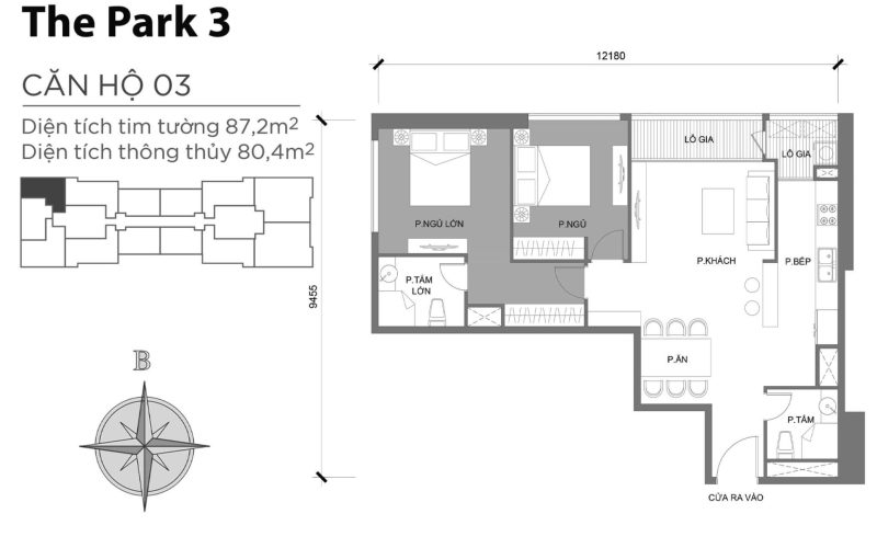
Thông tin Layout P3-03
- 2PN, 2WC, 1 ban công
- Diện tích tim tường: 87,2 m2
- Diện tích thông thuỷ: 80,4 m2
- Hướng cửa: Nam
- Hướng ban công: Bắc
- View: Sông, công viên
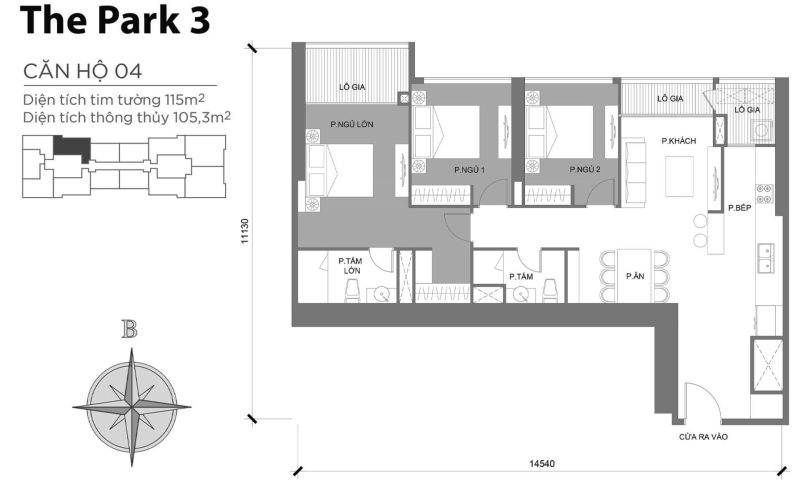
Thông tin Layout P3-04
- 3PN, 2WC, 2 ban công
- Diện tích tim tường: 115 m2
- Diện tích thông thuỷ: 105,3 m2
- Hướng cửa: Nam
- Hướng ban công: Bắc
- View: Sông, công viên
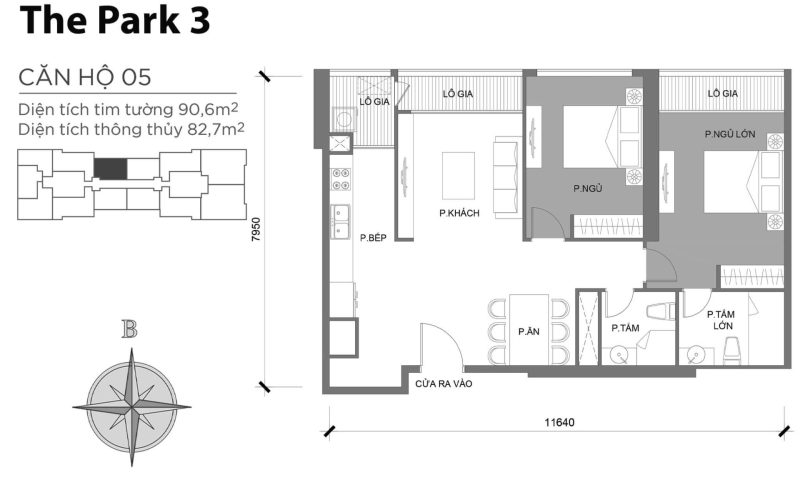
Thông tin Layout P3-05
- 2PN, 2WC, 2 ban công
- Diện tích tim tường: 90,6 m2
- Diện tích thông thuỷ: 82,7 m2
- Hướng cửa: Nam
- Hướng ban công: Bắc
- View: Sông, công viên
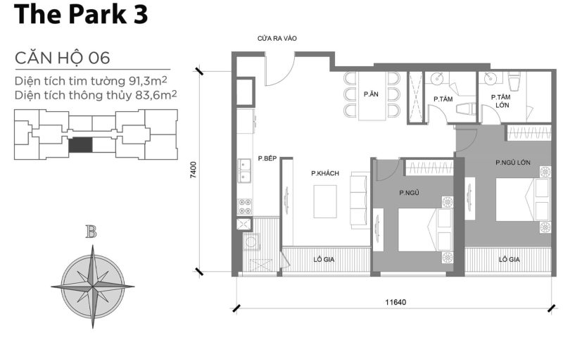
Thông tin Layout P3-06
- 2PN, 2WC, 2 ban công
- Diện tích tim tường: 91,3 m2
- Diện tích thông thuỷ: 83,6 m2
- Hướng cửa: Bắc
- Hướng ban công: Nam
- View: Sông, công viên
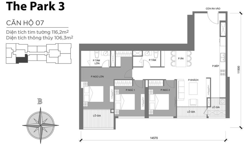
Thông tin Layout P3-07
- 3PN, 2WC, 2 ban công
- Diện tích tim tường: 116,2 m2
- Diện tích thông thuỷ: 106,3 m2
- Hướng cửa: Bắc
- Hướng ban công: Nam
- View: Sông, công viên
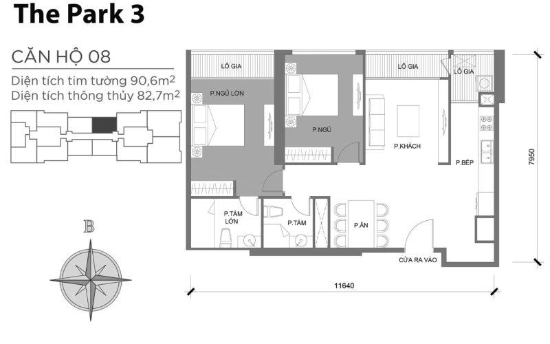
Thông tin Layout P3-08
- 2PN, 2WC, 2 ban công
- Diện tích tim tường: 90,6 m2
- Diện tích thông thuỷ: 82,7 m2
- Hướng cửa: Nam
- Hướng ban công: Bắc
- View: Sông, công viên
Thông tin Layout P3-09
- 3PN, 2WC, 2 ban công
- Diện tích tim tường: 115,3 m2
- Diện tích thông thuỷ: 105,5 m2
- Hướng cửa: Nam
- Hướng ban công: Bắc
- View: Sông, công viên
Thông tin Layout P3-10
- 4PN, 3WC, 3 ban công
- Diện tích tim tường: 187,7 m2
- Diện tích thông thuỷ: 174,1 m2
- Hướng cửa: Tây
- Hướng ban công: Đông
- View: Sông, công viên
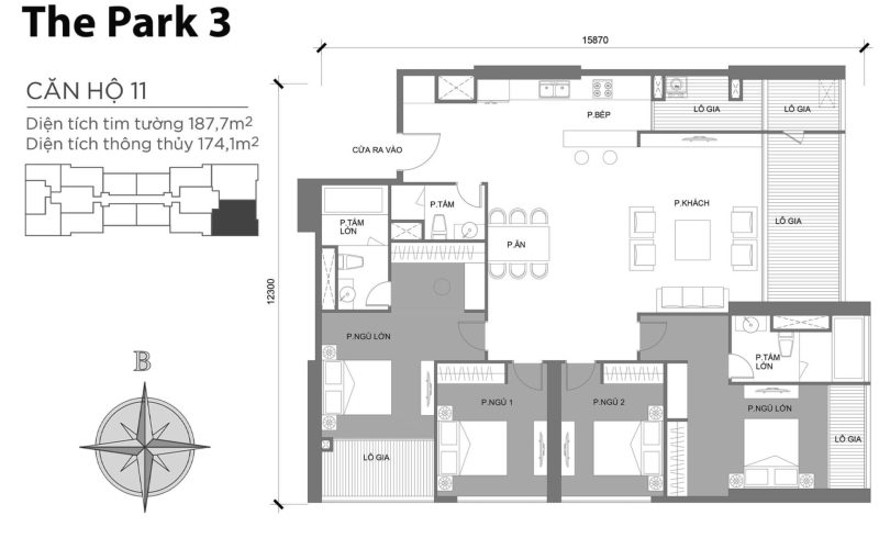
Thông tin Layout P3-11
- 4PN, 3WC, 3 ban công
- Diện tích tim tường: 187,7 m2
- Diện tích thông thuỷ: 174,1 m2
- Hướng cửa: Tây
- Hướng ban công: Đông
- View: Sông, công viên
Thông tin Layout P3-12
- 3PN, 2WC, 2 ban công
- Diện tích tim tường: 116,5 m2
- Diện tích thông thuỷ: 106,6 m2
- Hướng cửa: Bắc
- Hướng ban công: Nam
- View: Sông, công viên
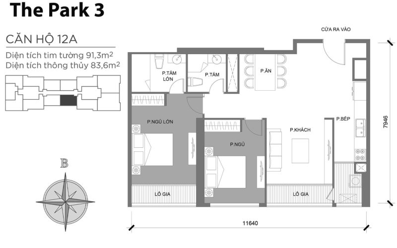
Thông tin Layout P3-12A
- 2PN, 2WC, 2 ban công
- Diện tích tim tường: 91,3 m2
- Diện tích thông thuỷ: 83,6 m2
- Hướng cửa: Bắc
- Hướng ban công: Nam
- View: Sông, công viên
Chú thích khi xem Layout Park 3
Chú thích: dấu * nhằm đánh dấu hướng view không nhìn trực diện mà phải nhìn theo một hướng xéo nhất định hoặc bị chắn một phần. (Đánh giá này dựa trên cảm quan cá nhân, quý vị nên xem trực tiếp view từ căn hộ để cảm nhận).
LIÊN HỆ CĂN HỘ VINHOMES – PLUSREAL
Địa chỉ : Số 27/31F phường An Phú, TP. Thủ Đức, TP.HCM
Điện thoại : 0906943455
Email : plusreal.cooperation@gmail.com
















