Mặt bằng Landmark 4 Vinhomes Central Park (Tân Cảng) được chủ đầu tư thiết kế tối ưu nhất. Căn hộ tại đây có giá cả phải chăng và được nhiều khách hàng yêu thích. Các doanh nghiệp cũng rất thích đặt văn phòng tại tòa căn hộ này
Thông tin mặt bằng Landmark 4 – Mặt bằng tổng thể tòa L4
The Landmark 4 một mặt giáp Landmark Plus mặt còn lại giáp Landmark 5. Thiết kế các tòa nhà chồng chéo khiến tòa căn hộ dù nằm giữa hai tòa nhưng view vẫn thoáng và vẫn nhận được gió trời mát mẻ.
Vị trí và Hướng Block căn hộ tại tòa L4
Block mặt bằng căn hộ tại đây thuộc khuôn viên Phân khu The Landmark của Vinhomes Central Park có các view hướng như sau:
- Hướng Tây Bắc: view hướng về thành phố và Landmark Plus; hướng quận Bình Thạnh
- Hướng Tây Nam: view hướng về nội khu Landmark plus, bệnh viện Vinmec; hướng về quận 1 và đường Nguyễn Hữu Cảnh
- Hướng Đông Bắc: view hướng thành phố và Landmark 5; hướng về sông Sài Gòn và Thủ Đức
- Hướng Đông Nam: view nhìn Landmark 5, Landmark 81; hướng về Tp. Thủ Đức
Chi tiết bàn giao mặt bằng Landmark 4 Vinhomes Central Park (Tân Cảng)
- Số tầng: 50 tầng – Hầm: 3 hầm
- 14 căn hộ trên một sàn
- Có 10 thang máy phục vụ cư dân – 2 thang thoát hiểm
- Shophouse, căn duplex thương mại: 8 shophouse 2 mặt tòa nhà
- Tòa căn hộ có sảnh Oto đón khách, mặt bên đường đối diện Landmark Plus
Tiện ích tại Landmark 4 Vinhomes Central Park
- Hồ bơi tràn bờ phục vụ cư dân với hệ thuống tiểu cảnh khép kín và không gian xanh tươi mát
- Khu vui chơi vận động ngoài trời cho trẻ nằm ngay mặt sau tòa nhà là tầng khối đế của Landmark 81
- Shophouse nhà hàng, spa, dịch vụ 5 sao
- View hướng thành phố và công viên Cetral Park – tầm nhìn xa đến thành phố Thủ Đức
Thông tin Layout L4-01
- 3PN, 2WC, 1 ban công
- Diện tích tim tường: 108,7 m2
- Diện tích thông thuỷ: 100,3 m2
- Hướng cửa: Đông Nam
- Hướng ban công: Tây Bắc
- View: Thành phố
Thông tin Layout L4-02
- 3PN, 2WC, 1 ban công
- Diện tích tim tường: 108,7 m2
- Diện tích thông thuỷ: 100,3 m2
- Hướng cửa: Đông Nam
- Hướng ban công: Tây Bắc
- View: Thành phố
Thông tin Layout L4-03
- 2PN, 2WC, 1 ban công
- Diện tích tim tường: 79,1 m2
- Diện tích thông thuỷ: 71,7 m2
- Hướng cửa: Tây Nam
- Hướng ban công: Đông Bắc
- View: Nội khu, thành phố*
Thông tin Layout L4-04
- 1PN, 1WC, 1 ban công
- Diện tích tim tường: 53,7 m2
- Diện tích thông thuỷ: 48,4 m2
- Hướng cửa: Tây Nam
- Hướng ban công: Đông Bắc
- View: Nội khu
Thông tin Layout L4-05
- 2PN, 2WC, 1 ban công
- Diện tích tim tường: 82 m2
- Diện tích thông thuỷ: 75,6 m2
- Hướng cửa: Tây Nam
- Hướng ban công: Đông Bắc
- View: Nội khu
Thông tin Layout L4-06
- 1PN, 1WC, 1 ban công
- Diện tích tim tường: 53,7 m2
- Diện tích thông thuỷ: 48,4 m2
- Hướng cửa: Tây Nam
- Hướng ban công: Đông Bắc
- View: Nội khu
Thông tin Layout L4-07
- 2PN, 2WC, 1 ban công
- Diện tích tim tường: 79,1 m2
- Diện tích thông thuỷ: 71,1 m2
- Hướng cửa: Tây Nam
- Hướng ban công: Đông Bắc
- View: Nội khu, Landmark 81*
Thông tin Layout L4-08
- 3PN, 2WC, 1 ban công
- Diện tích tim tường: 108,7 m2
- Diện tích thông thuỷ: 100,3 m2
- Hướng cửa: Tây Bắc
- Hướng ban công: Đông Nam
- View: Landmark 81
Thông tin Layout L4-09
- 3PN, 2WC, 1 ban công
- Diện tích tim tường: 108,7 m2
- Diện tích thông thuỷ: 100,3 m2
- Hướng cửa: Tây Bắc
- Hướng ban công: Đông Nam
- View: Landmark 8, Thành phố*
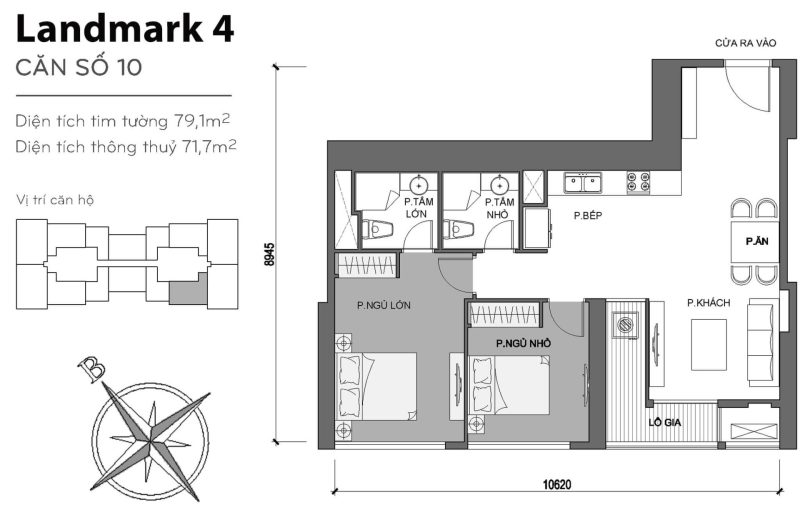
Thông tin Layout L4-10
- 2PN, 2WC, 1 ban công
- Diện tích tim tường: 79,1 m2
- Diện tích thông thuỷ: 71,7 m2
- Hướng cửa: Đông Bắc
- Hướng ban công: Tây Nam
- View: Thành phố
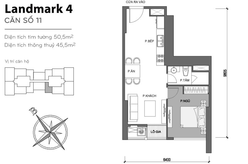
Thông tin Layout L4-11
- 1PN, 1WC, 1 ban công
- Diện tích tim tường: 50,5 m2
- Diện tích thông thuỷ: 45,5 m2
- Hướng cửa: Đông Bắc
- Hướng ban công: Tây Nam
- View: Thành phố
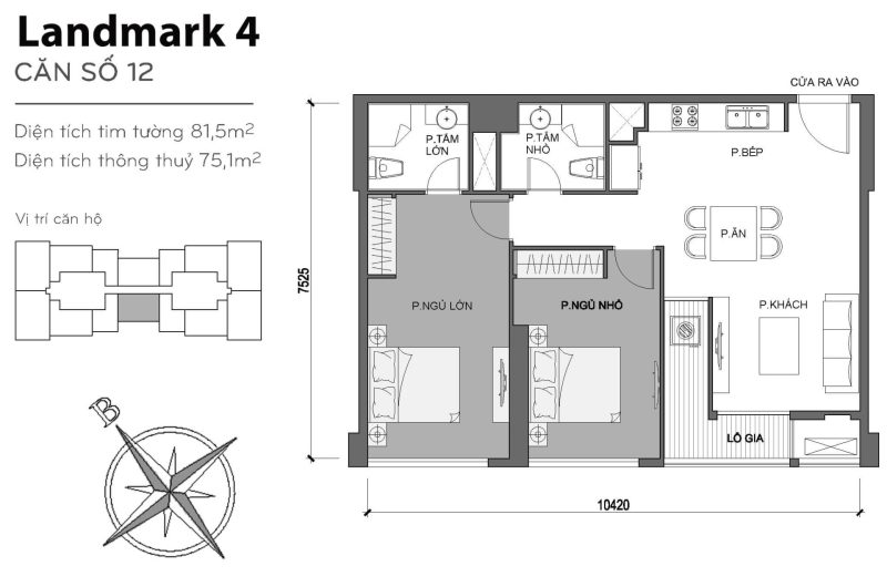
Thông tin Layout L4-12
- 2PN, 2WC, 1 ban công
- Diện tích tim tường: 81,5 m2
- Diện tích thông thuỷ: 75,1 m2
- Hướng cửa: Đông Bắc
- Hướng ban công: Tây Nam
- View: Thành phố
Thông tin Layout L4-12A
- 1PN, 1WC, 1 ban công
- Diện tích tim tường: 50,5 m2
- Diện tích thông thuỷ: 45,5 m2
- Hướng cửa: Đông Bắc
- Hướng ban công: Tây Nam
- View: Thành phố
Thông tin Layout L4-12B
- 2PN, 2WC, 1 ban công
- DT tim tường: 79,1 m2
- DT thông thuỷ: 71,7 m2
- Hướng cửa: Đông Bắc
- Hướng ban công: Tây Nam
- View: Thành phố
Chú thích khi xem Layout Landmark 4
Chú thích: dấu * nhằm đánh dấu hướng view không nhìn trực diện mà phải nhìn theo một hướng xéo nhất định hoặc bị chắn một phần. (Đánh giá này dựa trên cảm quan cá nhân, quý vị nên xem trực tiếp view từ căn hộ để cảm nhận).
LIÊN HỆ CĂN HỘ VINHOMES – PLUSREAL
Địa chỉ : Số 27/31F phường An Phú, TP. Thủ Đức, TP.HCM
Điện thoại : 0906943455
Email : plusreal.cooperation@gmail.com

















