Mặt bằng Landmark Plus Vinhomes Central Park (Tân Cảng) được chủ đầu tư chăm chút nhất và đây cũng là tòa căn hộ được chủ đầu tư trang bị nội thất cao cấp từ A đền Z. Có hai phong cách nội thất tại đây là bán cổ điển và nội thất hiện đại

Thông tin căn hộ Landmark Plus – mặt bằng tổng thể tòa LP

LP được thiết kế hình chữ L giúp các căn hộ có đa dạng view và phong cách phù hợp với nhiều khách hàng hơn.

Vị trí và Hướng Block căn hộ tại tòa LP

    Block mặt bằng căn hộ tại đây thuộc khuôn viên Phân khu The Landmark của Vinhomes Central Park có các view hướng như sau:
  • Hướng Tây Bắc: view hướng về thành phố và Vinmec; hướng quận Bình Thạnh
  • Hướng Tây Nam: view hướng về thành phố và Vinmec; hướng về quận 1 và đường Nguyễn Hữu Cảnh
  • Hướng Đông Bắc: view hướng về thành phố và Landmark 4; hướng về Tp Thủ Đức
  • Hướng Đông Nam: view nhìn nội khu Vinhomes và Vinmec; hướng về Tp. Thủ Đức

Chi tiết bàn giao mặt bằng Landmark Plus Vinhomes Central Park

  • Số tầng: 50 tầng – Hầm: 3 hầm
  • 20 căn hộ trên một sàn
  • Có 13 thang máy phục vụ cư dân – 2 thang thoát hiểm
  • Shophouse, căn duplex thương mại
  • Có sảnh Oto đón khách và có hồ bơi riêng của tòa

Tiện ích tại Landmark Plus Vinhomes Central Park

  • Hồ bơi tràn bờ phục vụ cư dân với hệ thuống tiểu cảnh khép kín và không gian xanh tươi mát
  • Khu vui chơi vận động ngoài trời cho trẻ
  • Shophouse nhà hàng, spa, dịch vụ 5 sao
  • View hướng thành phố và view Bitexco

Thông tin Layout LP-01

  • 2PN, 2WC, 1 ban công
  • Diện tích tim tường: 80,8 m2
  • Diện tích thông thuỷ: 74 m2
  • Hướng cửa: Đông Bắc
  • Hướng ban công: Tây Nam
  • View: Thành phố

Thông tin Layout LP-02

  • 2PN, 2WC, 1 ban công
  • Diện tích tim tường: 84,4 m2
  • Diện tích thông thuỷ: 76,5 m2
  • Hướng cửa: Đông Bắc
  • Hướng ban công: Tây Nam
  • View: Thành phố

Thông tin Layout LP-03

  • 1PN, 1WC, 1 ban công
  • Diện tích tim tường: 51,4 m2
  • Diện tích thông thuỷ: 46,8 m2
  • Hướng cửa: Đông Nam
  • Hướng ban công: Tây Bắc
  • View: Thành phố

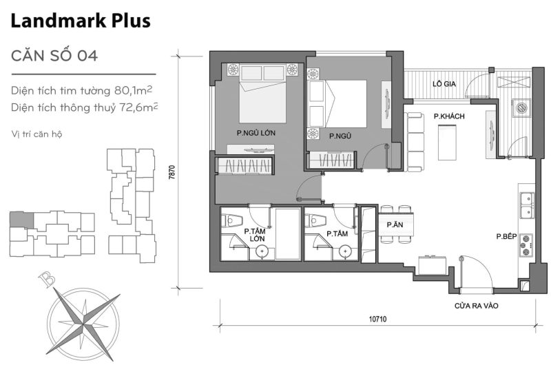
Thông tin Layout LP-04

  • 2PN, 2WC, 1 ban công
  • Diện tích tim tường: 80,1 m2
  • Diện tích thông thuỷ: 72,6 m2
  • Hướng cửa: Tây Nam
  • Hướng ban công: Đông Bắc
  • View: Thành phố

Thông tin Layout LP-05

  • 2PN, 2WC, 1 ban công
  • Diện tích tim tường: 79,2 m2
  • Diện tích thông thuỷ: 72,4 m2
  • Hướng cửa: Tây Nam
  • Hướng ban công: Đông Bắc
  • View: Thành phố

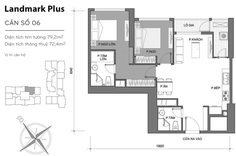
Thông tin Layout LP-06

  • 2PN, 2WC, 1 ban công
  • Diện tích tim tường: 79,2 m2
  • Diện tích thông thuỷ: 72,4 m2
  • Hướng cửa: Tây Nam
  • Hướng ban công: Đông Bắc
  • View: Thành phố

Thông tin Layout LP-07

  • 1PN, 1WC, 1 ban công
  • Diện tích tim tường: 53 m2
  • Diện tích thông thuỷ: 48,6 m2
  • Hướng cửa: Tây Nam
  • Hướng ban công: Đông Bắc
  • View: Thành phố

Thông tin Layout LP-08

  • 2PN, 2WC, 1 ban công
  • Diện tích tim tường: 82,1 m2
  • Diện tích thông thuỷ: 74,6 m2
  • Hướng cửa: Đông Nam
  • Hướng ban công: Tây Bắc
  • View: Thành phố

Thông tin Layout LP-09

  • 2PN, 2WC, 1 ban công
  • Diện tích tim tường: 76 m2
  • Diện tích thông thuỷ: 69,9 m2
  • Hướng cửa: Đông Nam
  • Hướng ban công: Tây Bắc
  • View: Thành phố

Thông tin Layout LP-10

  • 2PN, 2WC, 1 ban công
  • Diện tích tim tường: 86,8 m2
  • Diện tích thông thuỷ: 78,7 m2
  • Hướng cửa: Tây Nam
  • Hướng ban công: Tây Bắc
  • View: Thành phố

Thông tin Layout LP-11

  • 1PN, 1WC, 1 ban công
  • Diện tích tim tường: 57,2 m2
  • Diện tích thông thuỷ: 52,4 m2
  • Hướng cửa: Tây Nam
  • Hướng ban công: Đông Bắc
  • View: Nội khu

Thông tin Layout LP-12

  • 3PN, 2WC, 1 ban công
  • Diện tích tim tường: 110,5 m2
  • Diện tích thông thuỷ: 102,7 m2
  • Hướng cửa: Tây Bắc
  • Hướng ban công: Đông Nam
  • View: Nội khu

Thông tin Layout LP-12A

  • 1PN, 1WC, 1 ban công
  • Diện tích tim tường: 54,1 m2
  • Diện tích thông thuỷ: 49,1 m2
  • Hướng cửa: Tây Bắc
  • Hướng ban công: Đông Nam
  • View: Nội khu

Thông tin Layout LP-12B

  • 2PN, 2WC, 1 ban công
  • Diện tích tim tường: 77,2 m2
  • Diện tích thông thuỷ: 70,9 m2
  • Hướng cửa: Tây Bắc
  • Hướng ban công: Đông Nam
  • View: Nội khu

Thông tin Layout LP-15

  • 1PN, 1WC, 1 ban công
  • Diện tích tim tường: 55,2 m2
  • Diện tích thông thuỷ: 50,6 m2
  • Hướng cửa: Tây Bắc
  • Hướng ban công: Đông Nam
  • View: Nội khu

Thông tin Layout LP-16

  • 3PN, 2WC, 1 ban công
  • Diện tích tim tường: 108,2 m2
  • Diện tích thông thuỷ: 100,9 m2
  • Hướng cửa: Đông Bắc
  • Hướng ban công: Đông Nam
  • View: Nội khu, thành phố

Thông tin Layout LP-17

  • 1PN, 1WC, 1 ban công
  • Diện tích tim tường: 53,8 m2
  • Diện tích thông thuỷ: 48,4 m2
  • Hướng cửa: Đông Bắc
  • Hướng ban công: Tây Nam
  • View: Thành phố

Thông tin Layout LP-18

  • 1PN, 1WC, 1 ban công
  • Diện tích tim tường: 53,8 m2
  • Diện tích thông thuỷ: 48,7 m2
  • Hướng cửa: Đông Bắc
  • Hướng ban công: Tây Nam
  • View: Thành phố

Thông tin Layout LP-19

  • 1PN, 1WC, 1 ban công
  • Diện tích tim tường: 53,8 m2
  • Diện tích thông thuỷ: 48,7 m2
  • Hướng cửa: Đông Bắc
  • Hướng ban công: Tây Nam
  • View: Thành phố

Thông tin Layout LP-20

  • 2PN, 2WC, 1 ban công
  • Diện tích tim tường: 80,8 m2
  • Diện tích thông thuỷ: 74 m2
  • Hướng cửa: Đông Bắc
  • Hướng ban công: Tây Nam
  • View: Thành phố

Chú thích khi xem Layout Landmark 4​

Chú thích: dấu * nhằm đánh dấu hướng view không nhìn trực diện mà phải nhìn theo một hướng xéo nhất định hoặc bị chắn một phần. (Đánh giá này dựa trên cảm quan cá nhân, quý vị nên xem trực tiếp view từ căn hộ để cảm nhận).


LIÊN HỆ CĂN HỘ VINHOMES – PLUSREAL

Địa chỉ : Số 27/31F phường An Phú, TP. Thủ Đức, TP.HCM
Điện thoại : 0906943455
Email : plusreal.cooperation@gmail.com